皆様、こんにちは!
営業の北端です。
やっと梅雨が明けましたね。
明けたとたんに暑いです(´;ω;`)ウゥゥ
夏場に弱いわたしは、口唇ヘルペスが出来て苦しんでおります((+_+))
気を取り直して本日は新規物件のご紹介です!
1件目はこちら↓
海南市岡田 中古戸建
金額 1380万円(税込)
土地 137.48㎡ (約41.58坪)
建物 木造セメント瓦葺2階建て
平成2年4月新築 4LDK
1階 61.27㎡ 2階 51.34㎡ 合計 112.61㎡ (約34.06坪)
◎おすすめポイント
南東角地 南向き 駐車2台可(軽なら3台可) 全室6畳以上
外壁パワーボード 1・2階トイレあり 水洗(浄化槽)
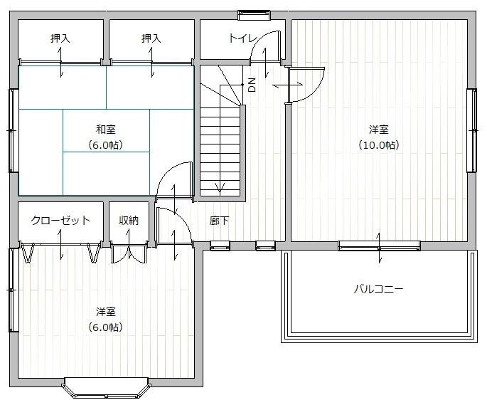
間取り図
1階

2階
現地写真
さらにこちらの物件はお隣とセット販売をしております。(別売り可能です)
隣地詳細
土地 122.63㎡ (約37.09坪)
建物 鉄骨造スレート瓦葺2階建て
昭和50年11月新築 用途 倉庫、作業場
1階 78.66㎡ 2階 78.66㎡ 合計 157.32㎡ (約47.58坪)
現地画像
何かご商売されている方や、趣味の道具、荷物が多い方、車やバイクを大事にされている方
などなど、用途は自由で多彩です。
ご興味のある方はどしどしお問合せ下さい!
2件目はこちら↓
岩出市山田 中古戸建
金額 880万円(税込)
土地 100.42㎡ (約30.37坪)
建物 木造セメント瓦葺2階建て
平成7年6月新築 4SLDK
1階 47.20㎡ 2階 44.71㎡ 合計 91.91㎡ (約27.80坪)
◎おすすめポイント
リフォーム済 駐車2台可(カーポート有1台分) トイレ・洗面新品
外壁塗装済 オール電化 閑静な住宅街
間取り図
1階
2階
現地写真
画像は一部ですが、とても綺麗な物件です。
こちらもどしどしお問合せお待ちしております!