00件
最近見た物件
00件
検討リスト
アクティブマドリード > 物件一覧 > 物件詳細
値下げしました!!平成25年築、4SLDKのお家です。太陽光4Kw オール電化 駐車3台











(※元利均等方式 金利5.00%まで ※返済年数5~50年まで入力できます)
(※ボーナスは年2回で計算しています。1000万円まで入力できます)
(※物件購入時、その他諸費用が発生する場合がございます)
| 所在地 | 和歌山県和歌山市栄谷 | ||
|---|---|---|---|
| 交通 | |||
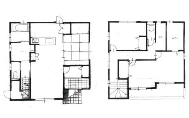
| 間取り/詳細 | 4LDK/ | 建物面積(坪数) | 124.75㎡(37.73坪) |
| 価格 | 2,880万円 | ||
| 駐車場/月額料金 | 有(3台)/- | ||
| 土地の敷金/保証金 | -/- | 借地料/借地期間 | -/- |
| 土地権利 | 所有権 | 土地面積(坪数) | 164.89㎡(49.87坪) |
| 傾斜地部分面積 | - | 路地状敷地 | - |
| 私道負担面積/セットバック | -/- | 高圧線下面積 | - |
| 地目/地勢 | 宅地/- | 接道状況 | 一方(南 公道 6.0m 間口 11.0m) |
| 建ぺい率/容積率 | 50%/100% | 用途地域 | 第一種低層住居専用 |
| 都市計画 | 市街化区域 | 種別/構造 | 中古一戸建/木造 |
| 階建 | 2階建 | 築年月(築年数) | 2013年 7月 (築12年) |
| 総区画数/販売区画数 | -/- | 向き | 南 |
| 現況 | 空家 | その他の法令上の制限 | 景観法 |
| 取引態様/引渡時期 | 仲介/即時 | 建築確認番号 | - |
| 物件番号 | 94487768 | 取引条件の有効期限 | 2026年03月27日 |
| 設備条件 |
|
||
| 備考 | こちらは南向きの物件です。ぜひ一度ご覧ください。4SLDKの快適な生活空間が魅力の、一押し物件です。124.75㎡の建物面積でスペースの面でも問題なく快適に過ごせますよ。住環境が良好だと、自然と気持ちにゆとりが生まれませんか。住まいには人の心までも左右する大きな力があるのです。そんな重要なお住まい探しだからこそ、当社にお任せ頂きたいのです。ぜひご検討ください。 | ||
| 取扱会社 |
|
||
| QRコード |
このQRコードを読み取ることで、スマホでも物件情報を確認できます。 |
||
※地図上に表示される物件の位置は付近住所に所在することを表すものであり、実際の物件所在地とは異なる場合がございます。
和歌山市の町名から探す
和歌山市にある駅から探す