00件
最近見た物件
00件
検討リスト
アクティブマドリード > 物件一覧 > 物件詳細
値下げしました!!昭和57年築、5SDK、鉄筋コンクリート造のお家です。敷地約118坪と広々 南西角地











(※元利均等方式 金利5.00%まで ※返済年数5~50年まで入力できます)
(※ボーナスは年2回で計算しています。1000万円まで入力できます)
(※物件購入時、その他諸費用が発生する場合がございます)
| 所在地 | 和歌山県和歌山市園部 | ||
|---|---|---|---|
| 交通 | |||
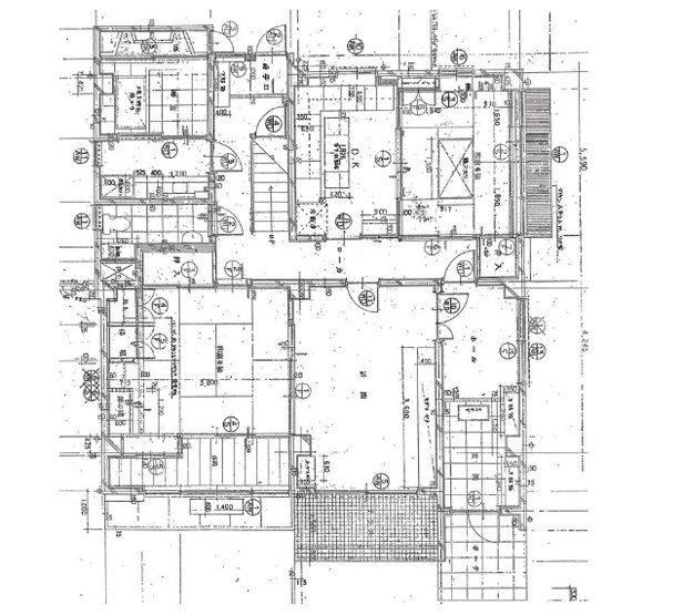
| 間取り/詳細 | 5DK/ | 建物面積(坪数) | 217.15㎡(65.68坪) |
| 価格 | 1,480万円 | ||
| 駐車場/月額料金 | 有/0円 | ||
| 土地の敷金/保証金 | -/- | 借地料/借地期間 | -/- |
| 土地権利 | 所有権 | 土地面積(坪数) | 391.53㎡(118.43坪) |
| 傾斜地部分面積 | - | 路地状敷地 | - |
| 私道負担面積/セットバック | -/- | 高圧線下面積 | - |
| 地目/地勢 | 宅地/平坦 | 接道状況 | 角地(南 公道 6.0m 間口 13.0m)(西 公道 6.0m 間口 32.0m) |
| 建ぺい率/容積率 | 50%/100% | 用途地域 | 第一種低層住居専用 |
| 都市計画 | 市街化区域 | 種別/構造 | 中古一戸建/鉄筋コンクリート |
| 階建 | 2階建 | 築年月(築年数) | 1982年 9月 (築43年) |
| 総区画数/販売区画数 | -/- | 向き | - |
| 現況 | 空家 | その他の法令上の制限 | 景観法 |
| 取引態様/引渡時期 | 仲介/即時 | 建築確認番号 | - |
| 物件番号 | 70268798 | 取引条件の有効期限 | 2025年11月18日 |
| 設備条件 |
|
||
| 備考 | 217.15平米程の建物面積でスペースも十分。建物を建てるときにポイントとなる接道は15m以上あります。設備や周辺環境が整っている中古戸建てはいかがでしょうか。角地の物件なら、朝から爽やかな気持ちになれます。お客様によって希望条件は異なります。当社ではお客様個人のご希望をお伺いし、それにマッチした不動産をご紹介致しております。まずはスタッフまでご希望をお申し付けください。 | ||
| 取扱会社 |
|
||
| QRコード |
このQRコードを読み取ることで、スマホでも物件情報を確認できます。 |
||
※地図上に表示される物件の位置は付近住所に所在することを表すものであり、実際の物件所在地とは異なる場合がございます。
和歌山市園部の中古一戸建に関するこだわり条件から探す
和歌山市の町名から探す
和歌山市にある駅から探す